母子ハウス

兵庫県宝塚市安倉西3丁目

【食糧支援や就労支援付/日当たり良好】宝塚市営鳥島住宅1号棟

placeholder
【食糧支援や就労支援付/日当たり良好】宝塚市営鳥島住宅1号棟
  • 【食糧支援や就労支援付/日当たり良好】宝塚市営鳥島住宅1号棟
  • 南からの採光があるキッチン
  • エアコン備え付け
  • 襖で独立した2部屋
  • シャワー、追い炊き機能付き
  • 南向きベランダ
  • 春は大堀川の満開の桜が見事です
  • 荷物を保管するための倉庫付き
  • 部屋ごとの入居状況
部屋 広さ 賃料 デポジット 礼金 共益費 入居状況
401 31.7㎡ ¥40,000 ¥80,000 ¥0 ¥4,000 空き
404 31.7㎡ ¥40,000 ¥80,000 ¥0 ¥4,000 空き

オーナーより一言

~私たち宝塚NPOセンターの想い~

「一人ひとりがありたい姿で社会ステージに立てる未来」これが、私たち宝塚NPOセンターが目指す未来です。集うすべての方とともにこの未来を作っていきたいと思っています。

~居住支援事業について~

「まちづくり」や「就労支援」の事業に加えて、2021年に居住支援法人格を取得し「住まい」に困っている方々の支援を始めました。というのは、就労支援の一つとして相談者とともに「仕事」を探すのですが、「住まい」がなくては仕事に就けないことがあり、住まいと仕事は1セットであると考え取り組んだのです。そして、コロナ禍の影響のためか、不安定な状況で働いていた女性たちの声も耳に入るようになりました。

「雇止め」や「勤務先の倒産」など、不安定な社会になった時、そのしわ寄せは社会的弱者に向けられるものだと、日々の事業を進めながら考える日々でした。

何かできないだろうかと模索している時に、「シングルマザーのための母子ハウスを作る」ために休眠預金を活用する助成制度があることを知りました。私たちにとってはチャレンジングなことと思いながらも申請をしたところ、採択をいただきました。その後、賃貸住宅の選定や建設会社との話し合いの際に、多くの方々から「社会貢献だから手伝う」というお声をいただき、皆さんのご協力のもと完成した建物『シングルマザーハウスWith』を2022年10月にオープンしました。

『シングルマザーハウスWith』は、シングルマザー、こどもたち、集う人で賑わいが生まれています。住まうだけでなく、シングルマザーが次の自分を見つける、例えば「自分に合ったお仕事」をキャリアコンサルタントと一緒に考えたり、気持ちが前向きになれずに少し疲れを感じている時には心理士が一緒に話をしたり、次に向かう場所に向かって歩めるような場になっています。

このような思いを「共に」する場を増やしたいと願い、新たに公営住宅での居住支援に取り組み始めました。

~大切にしたいこと~

大切にしたいのは、『シングルマザーハウスWith』の『With』の言葉の意味のように・・・その場には「共に」の気持ちがあふれていることです。ただの住居の機能を持つ建物ではなく、そこに集う人が作り上げる「空間」と「空気」を大切にしていきたいと考えています。部屋を貸すのだけではなく、住まう人と一緒に次のステップを探る「就労支援」、繋がりと紡ぐ「見守り」、コミュニティに集う様々な方と一緒に暮らしや憩いを整えつつ、集う方々にも社会参画の場として関わっていただく。

それらのことを通じて、皆が笑顔で暮らす場を作り、その場から周辺に笑顔が広がる。

その先には、皆が「共に」の思いを大切にできる社会を作っていければと考えています。

 

賃料 40,000円
共益費 4000円
交通 阪急今津線宝塚駅
バス 徒歩6分
物件タイプ アパートタイプ

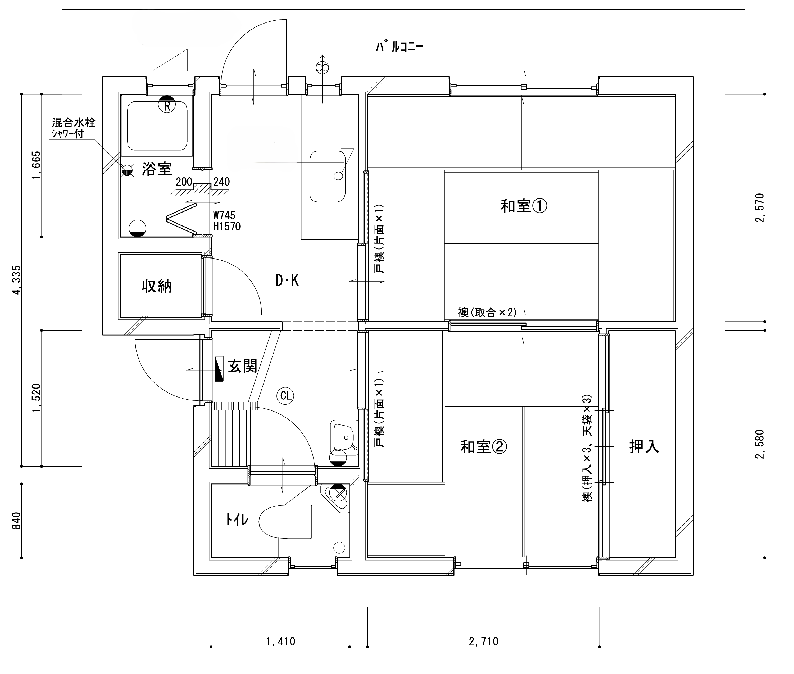
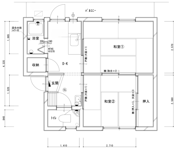
間取り図

  • 401号室
  • 404号室
図面2
取り扱い会社

歌劇のまち宝塚で活動している認定NPO法人です。まちづくりと就労支援の活動に加えて、2022年度から「住まいの支援」を本格的にスタートし「シングルマザーハウスWith」を開設、運営しています。

物件詳細情報

物件名 【食糧支援や就労支援付/日当たり良好】宝塚市営鳥島住宅1号棟 更新日 2026/01/13
賃料 40,000円 共益費 4000円
所在地 兵庫県宝塚市安倉西3丁目
交通 阪急今津線宝塚駅
バス 徒歩6分
周辺施設 お買い物:サンディ宝塚安倉店 徒歩9分
     ダイソーやまや宝塚安倉店 徒歩7分
市役所 :自転車8分、徒歩26分
病 院 :松本内科 徒歩10分
学 校 :安倉小学校 徒歩16分
     安倉中学校 徒歩17分
築年数 管理人 現状
建物面積 部屋数 駐輪場料金
建物構造 住宅保険料 バイク置き場料金
建物階数 住宅保険期間 駐車場料金